Capsule

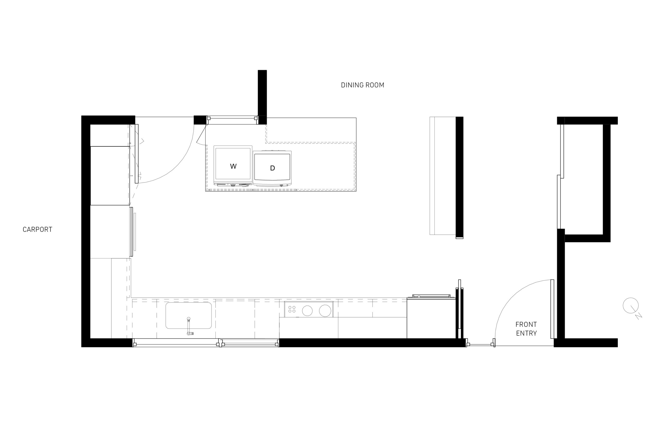
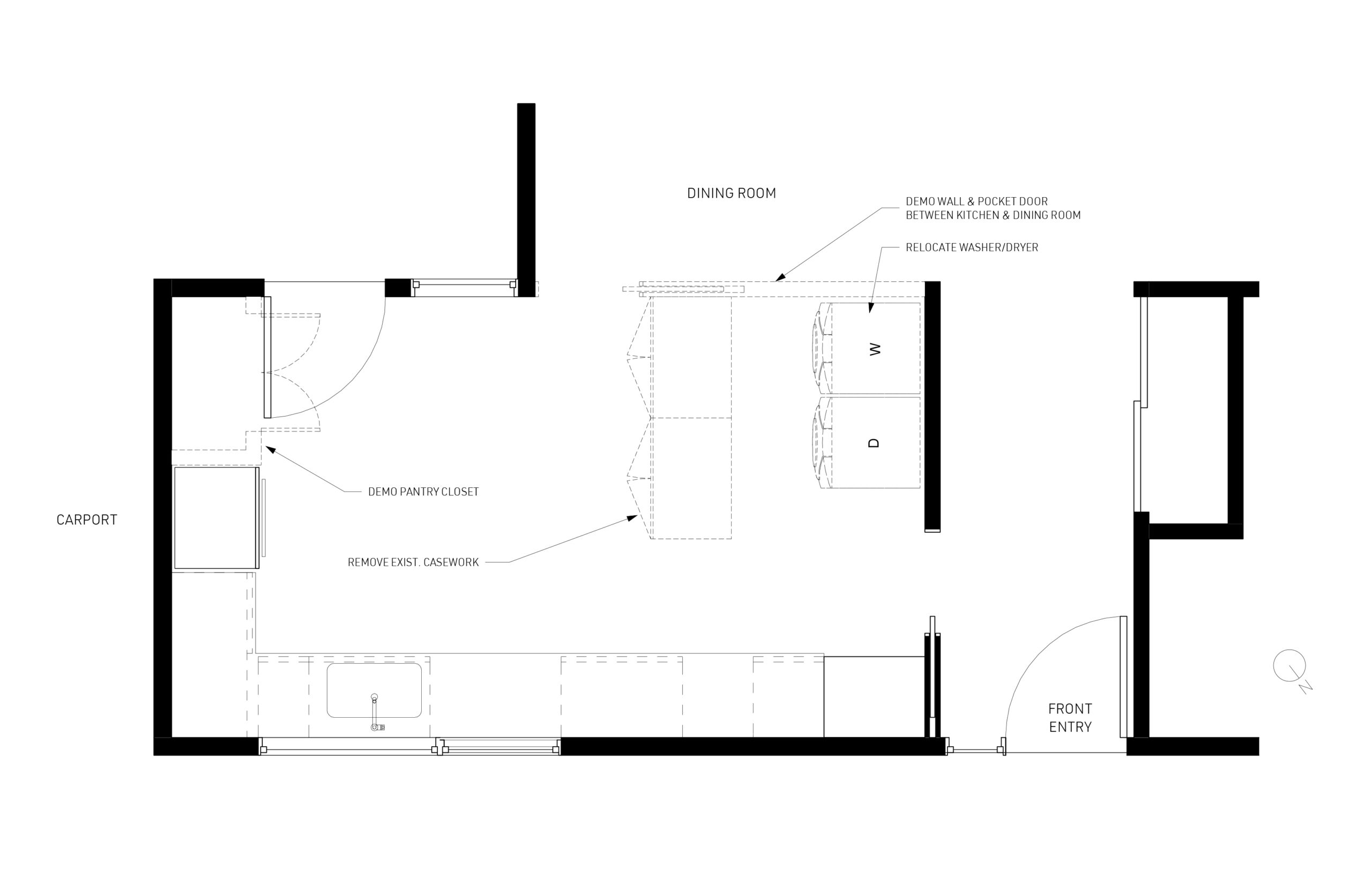
A remodel of a 1955 A. O. Bumgardner home. Includes reworking the kitchen to better integrate it with the dining & living area, and relocating the  laundry. This home was originally featured in the Seattle Times in 1957, and this project was published as part of their Now & Then series.

 

See the article in the Seattle Times