Capsule

 

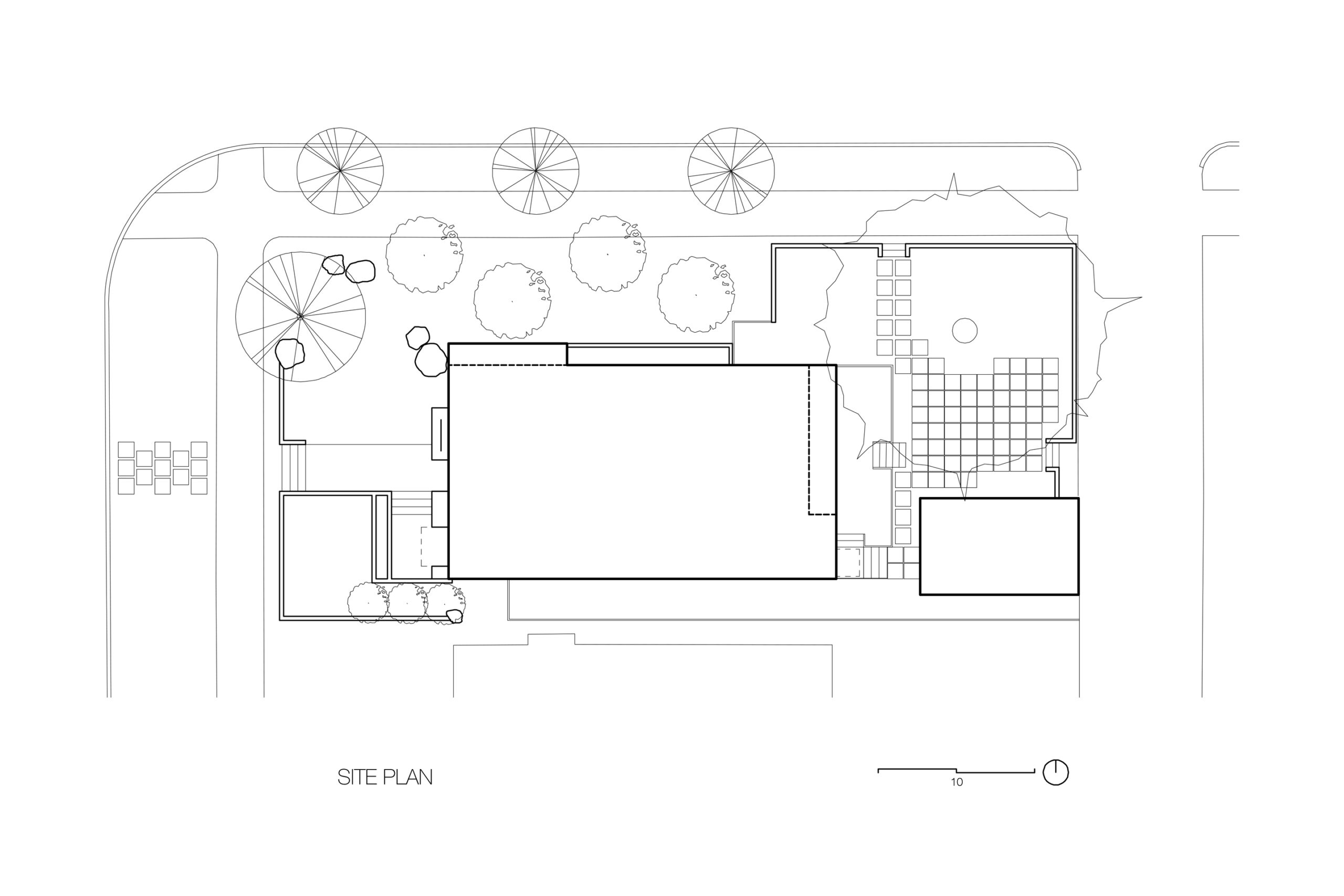
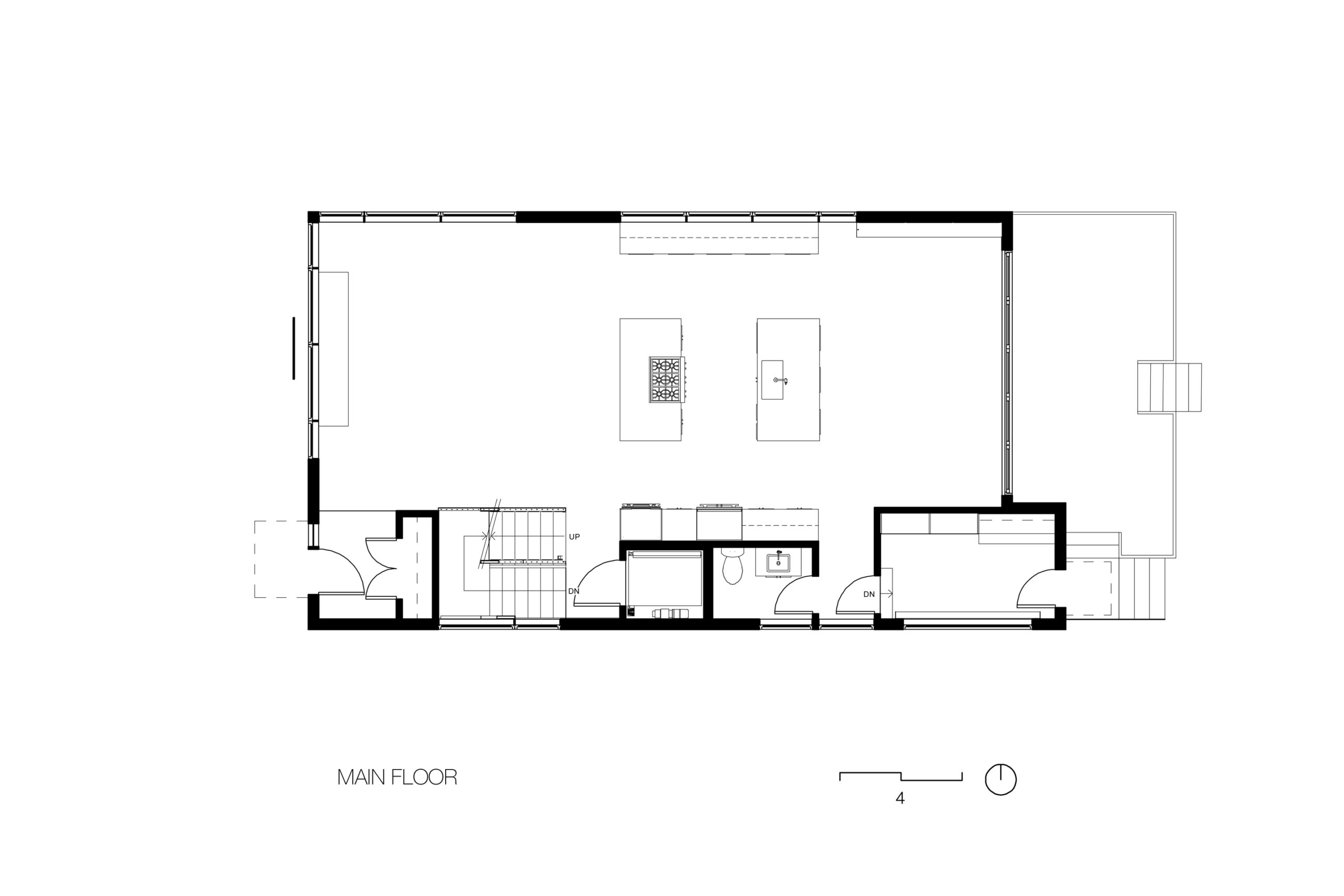
This custom single family residence emphasized the role of the house to be a gathering place for the owner’s extended family. Consequently, the main floor is dominated by an 900+sf great room, where various social functions such as eating together, playing games, dancing, and cooking are all interconnected and overlap. High ceilings allow for lots of natural light through large clerestory windows while maintaining a sense of privacy for a corner lot home.

Featured in the Seattle Times